Windsor Locks, CT : Assessor Database
Property Search:
Parcel ID:  Alternate ID:  Owner 1 Name:  Street Number:  Street Name: 
Property Detail:
Parcel ID:  Alternate ID/Map Block Lot:  Card:  Card:  Street Name:  Street Number:  Zoning:  LUC:  Acres: 
00002400
034-062-001-
1
1
ELM STREET
298
RESA
Single Family Residence
0.35
Owner Information:
Owner 1 Name: 
CORSO CHRISTOPHER C
Owner 2 Name: 
 
Street 1: 
298 ELM ST
Street 2: 
 
City: 
WINDSOR LOCKS
State: 
CT
Zip: 
06096
Volume: 
513
Page: 
131
Deed Date: 
0000-00-00
Dwelling Information:
Living Units: 
1
Style: 
RANCH
Exterior Wall: 
VINYL SIDING
Story Height: 
1.0
Attic: 
NONE
Basement: 
FULL
Rec Room: 
450
Finished Basement Area: 
0
Bsmt Gar Spaces: 
0
Heating System: 
GAS/HOT WATER
Central Air: 
Yes
Fireplaces: 
1
Year Built: 
1952
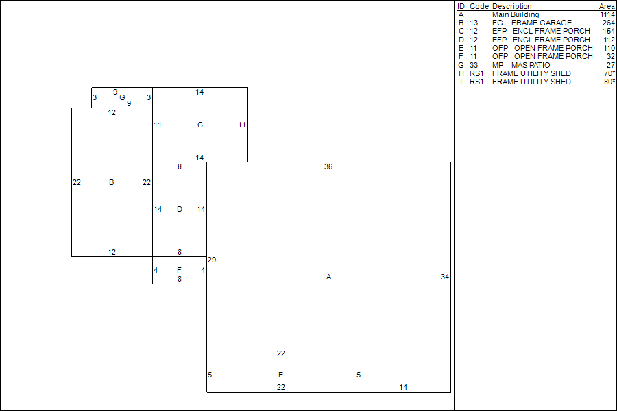
Living Area: 
1114
Unfinished Area: 
0
Rooms: 
4
Bedrooms: 
2
Full Baths: 
1
Half Baths: 
1
Valuation:
Appraised Land: 
$60,800.00
Appraised Land PA490: 
$0.00
Appraised Bldg: 
$103,700.00
Appraised Total: 
$164,500.00
Total Assessment: 
$115,150.00
Property Images:
Picture: 
Sketch: 
Sales History:
Book: Page: Sale Date: Price: Validity: Sale Type:
47  490  10/31/51  1,000     
513  131  11/23/21    QUIT CLAIM  IMPROVED - L&B SALE 
456  902  05/23/16  167,500  VERIF BY DEED OR ASSURANCE  IMPROVED - L&B SALE 
387  743  03/09/09    WILL  IMPROVED - L&B SALE 
387  744  03/09/09  178,000  VERIF BY DEED OR ASSURANCE  IMPROVED - L&B SALE 
322  701  06/07/04  162,500  VERIF BY DEED OR ASSURANCE  IMPROVED - L&B SALE 
314  244  11/26/03    WILL  IMPROVED - L&B SALE 
Out-Buildings:
Code: Description: Units: Year Built: Size1: Size2: Area: Grade: Condition:
RS1  FRAME UTILITY SHED  2007  80  AVERAGE 
RS1  FRAME UTILITY SHED  1999  70  POOR 
The information delivered through this on-line database is provided in the spirit of open access to government information and is intended as an enhanced service and convenience for citizens of Windsor Locks, CT.
The providers of this database: Tyler CLT, Big Room Studios, and Windsor Locks, CT assume no liability for any error or omission in the information provided here.

Comments regarding this service should be directed to: tim@bigroomstudios.com

Fri. December 19, 2025 : 09:58 AM : 0.10s : 10mb Big Room Studios