Windsor Locks, CT : Assessor Database
Property Search:
Parcel ID:  Alternate ID:  Owner 1 Name:  Street Number:  Street Name: 
Property Detail:
Parcel ID:  Alternate ID/Map Block Lot:  Card:  Card:  Street Name:  Street Number:  Zoning:  LUC:  Acres: 
00005800
048-099-012-
1
1
HEATHER LANE
25
RESA
Single Family Residence
0.35
Owner Information:
Owner 1 Name: 
FULTON LOIS G
Owner 2 Name: 
 
Street 1: 
25 HEATHER LA
Street 2: 
 
City: 
WINDSOR LOCKS
State: 
CT
Zip: 
06096
Volume: 
484
Page: 
732
Deed Date: 
0000-00-00
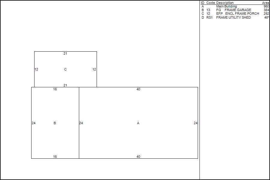
Dwelling Information:
Living Units: 
1
Style: 
RANCH
Exterior Wall: 
WOOD SHINGLE
Story Height: 
1.0
Attic: 
NONE
Basement: 
FULL
Rec Room: 
465
Finished Basement Area: 
0
Bsmt Gar Spaces: 
0
Heating System: 
GAS/FORCED AIR-DUC
Central Air: 
No
Fireplaces: 
0
Year Built: 
1960
Living Area: 
960
Unfinished Area: 
0
Rooms: 
5
Bedrooms: 
3
Full Baths: 
1
Half Baths: 
0
Valuation:
Appraised Land: 
$64,000.00
Appraised Land PA490: 
$0.00
Appraised Bldg: 
$91,600.00
Appraised Total: 
$155,600.00
Total Assessment: 
$108,920.00
Property Images:
Picture: 
Sketch: 
Sales History:
Book: Page: Sale Date: Price: Validity: Sale Type:
484  732  05/14/19    WILL  IMPROVED - L&B SALE 
111  146  03/27/72       
Out-Buildings:
Code: Description: Units: Year Built: Size1: Size2: Area: Grade: Condition:
RS1  FRAME UTILITY SHED  1999  48  POOR 
The information delivered through this on-line database is provided in the spirit of open access to government information and is intended as an enhanced service and convenience for citizens of Windsor Locks, CT.
The providers of this database: Tyler CLT, Big Room Studios, and Windsor Locks, CT assume no liability for any error or omission in the information provided here.

Comments regarding this service should be directed to: tim@bigroomstudios.com

Tue. November 25, 2025 : 02:15 PM : 0.08s : 9mb Big Room Studios