Windsor Locks, CT : Assessor Database
Property Search:
Parcel ID:  Alternate ID:  Owner 1 Name:  Street Number:  Street Name: 
Property Detail:
Parcel ID:  Alternate ID/Map Block Lot:  Card:  Card:  Street Name:  Street Number:  Zoning:  LUC:  Acres: 
00010300
028-052-002-
1
1
OAK STREET
101
RESA
Two Family
0.26
Owner Information:
Owner 1 Name: 
WHITTEN MARK H JR
Owner 2 Name: 
 
Street 1: 
101 OAK STREET
Street 2: 
 
City: 
WINDSOR LOCKS
State: 
CT
Zip: 
06096
Volume: 
424
Page: 
542
Deed Date: 
0000-00-00
Dwelling Information:
Living Units: 
2
Style: 
COLONIAL
Exterior Wall: 
BRICK/MASONRY
Story Height: 
2.0
Attic: 
NONE
Basement: 
FULL
Rec Room: 
0
Finished Basement Area: 
0
Bsmt Gar Spaces: 
0
Heating System: 
GAS/HOT WATER
Central Air: 
No
Fireplaces: 
0
Year Built: 
1885
Living Area: 
2324
Unfinished Area: 
0
Rooms: 
10
Bedrooms: 
5
Full Baths: 
2
Half Baths: 
1
Valuation:
Appraised Land: 
$40,700.00
Appraised Land PA490: 
$0.00
Appraised Bldg: 
$150,100.00
Appraised Total: 
$190,800.00
Total Assessment: 
$133,560.00
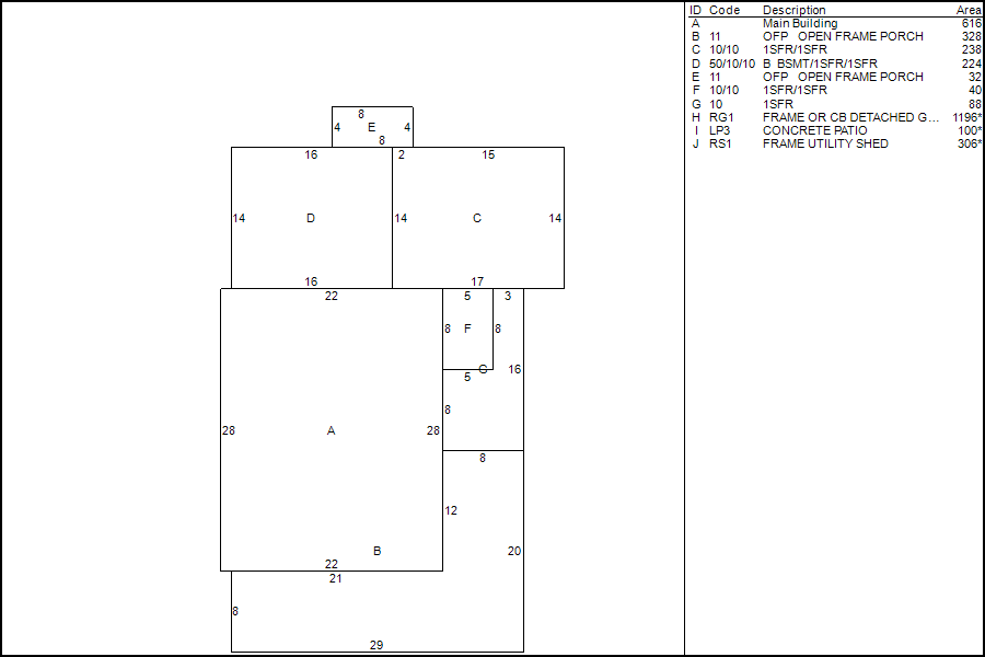
Property Images:
Picture: 
Sketch: 
Sales History:
Book: Page: Sale Date: Price: Validity: Sale Type:
424  541  12/21/12    WILL  IMPROVED - L&B SALE 
424  542  12/21/12  108,000  OTHER  IMPROVED - L&B SALE 
160  261  06/19/86       
Out-Buildings:
Code: Description: Units: Year Built: Size1: Size2: Area: Grade: Condition:
RG1  FRAME OR CB DETACHED GARAGE  1885  1196  AVERAGE 
LP3  CONCRETE PATIO  2017  100  EXCELLENT 
RS1  FRAME UTILITY SHED  1885  306  AVERAGE 
The information delivered through this on-line database is provided in the spirit of open access to government information and is intended as an enhanced service and convenience for citizens of Windsor Locks, CT.
The providers of this database: Tyler CLT, Big Room Studios, and Windsor Locks, CT assume no liability for any error or omission in the information provided here.

Comments regarding this service should be directed to: tim@bigroomstudios.com

Fri. December 19, 2025 : 10:08 AM : 0.15s : 10mb Big Room Studios