Windsor Locks, CT : Assessor Database
Property Search:
Parcel ID:  Alternate ID:  Owner 1 Name:  Street Number:  Street Name: 
Property Detail:
Parcel ID:  Alternate ID/Map Block Lot:  Card:  Card:  Street Name:  Street Number:  Zoning:  LUC:  Acres: 
00047100
033-070-048-
1
1
ASH DRIVE
503
RESA
Single Family Residence
0.41
Owner Information:
Owner 1 Name: 
DOWDEN MARGARET L
Owner 2 Name: 
 
Street 1: 
503 ASH DRIVE
Street 2: 
 
City: 
WINDSOR LOCKS
State: 
CT
Zip: 
06096
Volume: 
362
Page: 
731
Deed Date: 
0000-00-00
Dwelling Information:
Living Units: 
1
Style: 
CAPE COD
Exterior Wall: 
ALUMINUM SIDIN
Story Height: 
1.7
Attic: 
NONE
Basement: 
FULL
Rec Room: 
0
Finished Basement Area: 
0
Bsmt Gar Spaces: 
0
Heating System: 
OIL/HOT WATER
Central Air: 
No
Fireplaces: 
1
Year Built: 
1953
Living Area: 
1544
Unfinished Area: 
0
Rooms: 
7
Bedrooms: 
3
Full Baths: 
1
Half Baths: 
1
Valuation:
Appraised Land: 
$65,700.00
Appraised Land PA490: 
$0.00
Appraised Bldg: 
$100,800.00
Appraised Total: 
$166,500.00
Total Assessment: 
$116,550.00
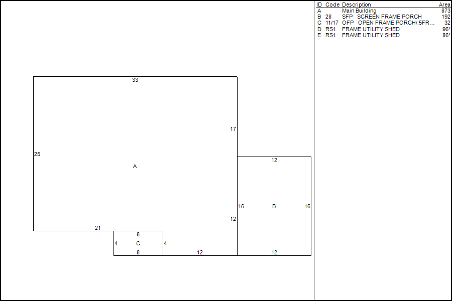
Property Images:
Picture: 
Sketch: 
Sales History:
Book: Page: Sale Date: Price: Validity: Sale Type:
53  263  12/29/53  12,000     
362  731  12/07/06    WILL  IMPROVED - L&B SALE 
Out-Buildings:
Code: Description: Units: Year Built: Size1: Size2: Area: Grade: Condition:
RS1  FRAME UTILITY SHED  2007  96  AVERAGE 
RS1  FRAME UTILITY SHED  2007  86  AVERAGE 
The information delivered through this on-line database is provided in the spirit of open access to government information and is intended as an enhanced service and convenience for citizens of Windsor Locks, CT.
The providers of this database: Tyler CLT, Big Room Studios, and Windsor Locks, CT assume no liability for any error or omission in the information provided here.

Comments regarding this service should be directed to: tim@bigroomstudios.com

Thu. November 20, 2025 : 05:45 AM : 0.10s : 9mb Big Room Studios