Windsor Locks, CT : Assessor Database
Property Search:
Parcel ID:  Alternate ID:  Owner 1 Name:  Street Number:  Street Name: 
Property Detail:
Parcel ID:  Alternate ID/Map Block Lot:  Card:  Card:  Street Name:  Street Number:  Zoning:  LUC:  Acres: 
00093900
039-125-034-B5
1
1
CONCORDE WAY
3
BUS2
Residential Condominium
0.00
Owner Information:
Owner 1 Name: 
THOMPSON EMILY
Owner 2 Name: 
 
Street 1: 
3 CONCORDE WAY UNIT B5
Street 2: 
 
City: 
WINDSOR LOCKS
State: 
CT
Zip: 
06096
Volume: 
463
Page: 
650
Deed Date: 
0000-00-00
Dwelling Information:
Living Units: 
1
Style: 
CONDO
Exterior Wall: 
 
Story Height: 
2.0
Attic: 
NONE
Basement: 
NONE
Rec Room: 
0
Finished Basement Area: 
0
Bsmt Gar Spaces: 
0
Heating System: 
GAS/FORCED AIR-DUC
Central Air: 
Yes
Fireplaces: 
0
Year Built: 
1986
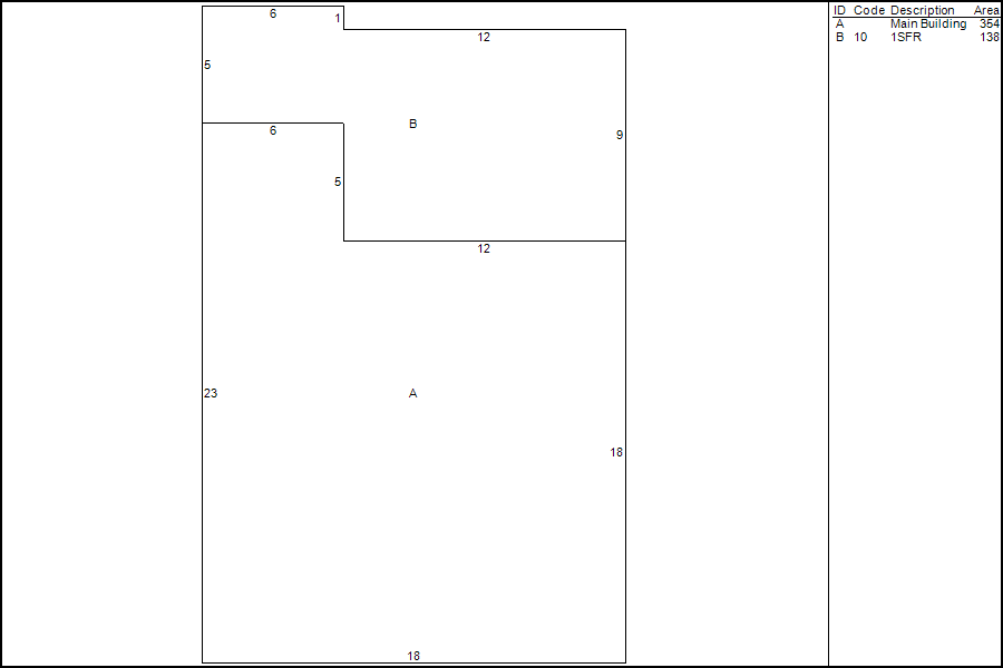
Living Area: 
846
Unfinished Area: 
0
Rooms: 
3
Bedrooms: 
1
Full Baths: 
1
Half Baths: 
1
Valuation:
Appraised Land: 
$0.00
Appraised Land PA490: 
$0.00
Appraised Bldg: 
$85,400.00
Appraised Total: 
$85,400.00
Total Assessment: 
$59,780.00
Property Images:
Picture: 
Sketch: 
Sales History:
Book: Page: Sale Date: Price: Validity: Sale Type:
463  650  01/12/17  61,000  SALE OF FORCLOSED PROP  IMPROVED - L&B SALE 
456  920  05/24/16  10  SALE TO OR FROM GOVERNMENT  IMPROVED - L&B SALE 
434  409  11/06/13    SALE OF FORCLOSED PROP  IMPROVED - L&B SALE 
379  1061  06/02/08  111,700  VERIF BY DEED OR ASSURANCE  IMPROVED - L&B SALE 
322  181  06/02/04  87,300  VERIF BY DEED OR ASSURANCE  IMPROVED - L&B SALE 
286  561  05/15/02  63,500  VERIF BY DEED OR ASSURANCE  IMPROVED - L&B SALE 
176  936  03/14/88  95,900     
The information delivered through this on-line database is provided in the spirit of open access to government information and is intended as an enhanced service and convenience for citizens of Windsor Locks, CT.
The providers of this database: Tyler CLT, Big Room Studios, and Windsor Locks, CT assume no liability for any error or omission in the information provided here.

Comments regarding this service should be directed to: tim@bigroomstudios.com

Wed. November 5, 2025 : 02:02 PM : 0.10s : 9mb Big Room Studios