Windsor Locks, CT : Assessor Database
Property Search:
Parcel ID:  Alternate ID:  Owner 1 Name:  Street Number:  Street Name: 
Property Detail:
Parcel ID:  Alternate ID/Map Block Lot:  Card:  Card:  Street Name:  Street Number:  Zoning:  LUC:  Acres: 
00107800
040-117-011-
1
1
CORNWALL DRIVE
11
RESA
Single Family Residence
0.29
Owner Information:
Owner 1 Name: 
BLYDENBURG DANA M & GRAY JENNA
Owner 2 Name: 
 
Street 1: 
11 CORNWALL DRIVE
Street 2: 
 
City: 
WINDSOR LOCKS
State: 
CT
Zip: 
06096
Volume: 
490
Page: 
947
Deed Date: 
0000-00-00
Dwelling Information:
Living Units: 
1
Style: 
RANCH
Exterior Wall: 
VINYL SIDING
Story Height: 
1.0
Attic: 
NONE
Basement: 
FULL
Rec Room: 
0
Finished Basement Area: 
0
Bsmt Gar Spaces: 
0
Heating System: 
OIL/FORCED AIR-DUC
Central Air: 
No
Fireplaces: 
0
Year Built: 
1953
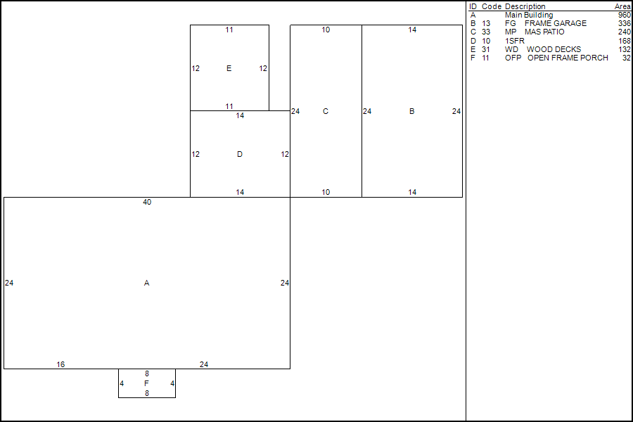
Living Area: 
1128
Unfinished Area: 
0
Rooms: 
5
Bedrooms: 
3
Full Baths: 
1
Half Baths: 
1
Valuation:
Appraised Land: 
$60,300.00
Appraised Land PA490: 
$0.00
Appraised Bldg: 
$108,700.00
Appraised Total: 
$169,000.00
Total Assessment: 
$118,300.00
Property Images:
Picture: 
Sketch: 
Sales History:
Book: Page: Sale Date: Price: Validity: Sale Type:
490  947  12/18/19  187,500  WARRANTY DEED  IMPROVED - L&B SALE 
429  209  05/24/13  171,000  SALE OF FORCLOSED PROP  IMPROVED - L&B SALE 
422  490  10/25/12  47,500  SALE OF FORCLOSED PROP  IMPROVED - L&B SALE 
249  672  05/29/98       
The information delivered through this on-line database is provided in the spirit of open access to government information and is intended as an enhanced service and convenience for citizens of Windsor Locks, CT.
The providers of this database: Tyler CLT, Big Room Studios, and Windsor Locks, CT assume no liability for any error or omission in the information provided here.

Comments regarding this service should be directed to: tim@bigroomstudios.com

Tue. December 16, 2025 : 08:32 AM : 0.10s : 9mb Big Room Studios