Windsor Locks, CT : Assessor Database
Property Search:
Parcel ID:  Alternate ID:  Owner 1 Name:  Street Number:  Street Name: 
Property Detail:
Parcel ID:  Alternate ID/Map Block Lot:  Card:  Card:  Street Name:  Street Number:  Zoning:  LUC:  Acres: 
00118500
018-039-013-
1
1
DEBORAH ROAD
11
RESB
Single Family Residence
0.35
Owner Information:
Owner 1 Name: 
GILBERTO MAUREEN W LU & HOBER GINA
Owner 2 Name: 
 
Street 1: 
100 SANDRA DRIVE
Street 2: 
 
City: 
EAST HARTFORD
State: 
CT
Zip: 
06118
Volume: 
400
Page: 
1095
Deed Date: 
0000-00-00
Dwelling Information:
Living Units: 
1
Style: 
RANCH
Exterior Wall: 
VINYL SIDING
Story Height: 
1.0
Attic: 
NONE
Basement: 
FULL
Rec Room: 
916
Finished Basement Area: 
0
Bsmt Gar Spaces: 
0
Heating System: 
GAS/FORCED AIR-DUC
Central Air: 
Yes
Fireplaces: 
0
Year Built: 
1965
Living Area: 
1223
Unfinished Area: 
0
Rooms: 
9
Bedrooms: 
6
Full Baths: 
2
Half Baths: 
0
Valuation:
Appraised Land: 
$64,000.00
Appraised Land PA490: 
$0.00
Appraised Bldg: 
$121,300.00
Appraised Total: 
$185,300.00
Total Assessment: 
$129,710.00
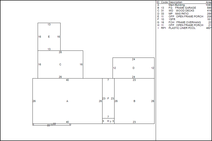
Property Images:
Picture: 
Sketch: 
Sales History:
Book: Page: Sale Date: Price: Validity: Sale Type:
400  1095  08/02/10      IMPROVED - L&B SALE 
197  465  11/05/90       
Out-Buildings:
Code: Description: Units: Year Built: Size1: Size2: Area: Grade: Condition:
RP1  PLASTIC LINER POOL  1999  480  GOOD 
The information delivered through this on-line database is provided in the spirit of open access to government information and is intended as an enhanced service and convenience for citizens of Windsor Locks, CT.
The providers of this database: Tyler CLT, Big Room Studios, and Windsor Locks, CT assume no liability for any error or omission in the information provided here.

Comments regarding this service should be directed to: tim@bigroomstudios.com

Tue. December 16, 2025 : 08:35 AM : 0.10s : 9mb Big Room Studios