Windsor Locks, CT : Assessor Database
Property Search:
Parcel ID:  Alternate ID:  Owner 1 Name:  Street Number:  Street Name: 
Property Detail:
Parcel ID:  Alternate ID/Map Block Lot:  Card:  Card:  Street Name:  Street Number:  Zoning:  LUC:  Acres: 
00175900
045-125-018-3
1
1
FOX HOLLOW DRIVE
3
MFSD
Residential Condominium
0.00
Owner Information:
Owner 1 Name: 
MANKOUSKI CONNOR & KEVIN
Owner 2 Name: 
 
Street 1: 
3 FOX HOLLOW DRIVE
Street 2: 
 
City: 
WINDSOR LOCKS
State: 
CT
Zip: 
06096
Volume: 
496
Page: 
930
Deed Date: 
0000-00-00
Dwelling Information:
Living Units: 
1
Style: 
CONDO
Exterior Wall: 
 
Story Height: 
2.0
Attic: 
NONE
Basement: 
FULL
Rec Room: 
0
Finished Basement Area: 
0
Bsmt Gar Spaces: 
0
Heating System: 
GAS/FORCED AIR-DUC
Central Air: 
Yes
Fireplaces: 
0
Year Built: 
1988
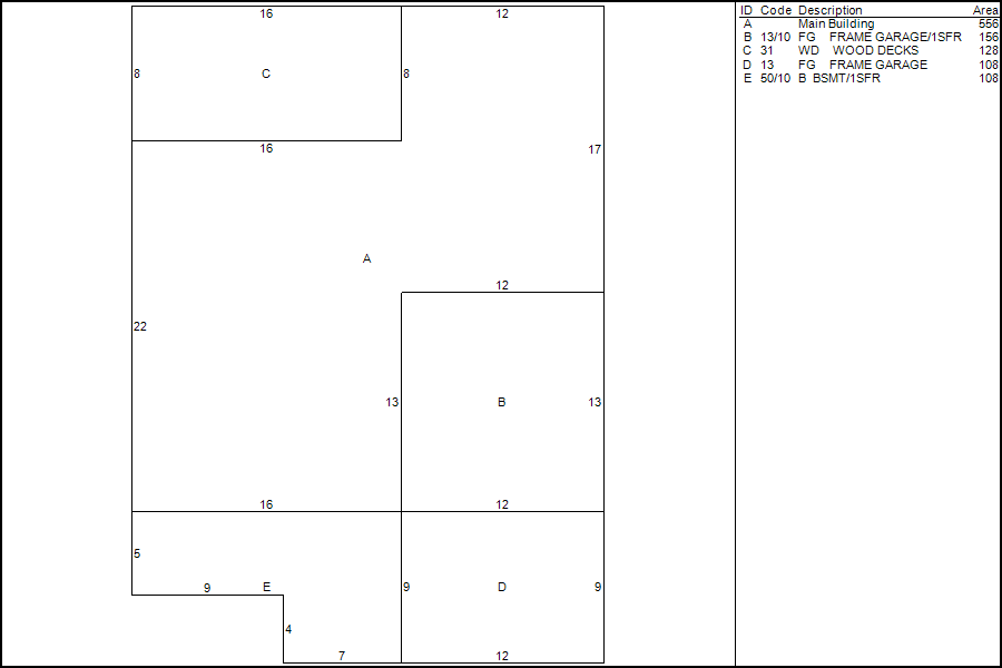
Living Area: 
1376
Unfinished Area: 
0
Rooms: 
5
Bedrooms: 
2
Full Baths: 
2
Half Baths: 
1
Valuation:
Appraised Land: 
$0.00
Appraised Land PA490: 
$0.00
Appraised Bldg: 
$159,000.00
Appraised Total: 
$159,000.00
Total Assessment: 
$111,300.00
Property Images:
Picture: 
Sketch: 
Sales History:
Book: Page: Sale Date: Price: Validity: Sale Type:
496  930  08/25/20  159,500  EXECUTOR DEED  IMPROVED - L&B SALE 
494  141  05/26/20    PROBATE CERT.  IMPROVED - L&B SALE 
222  666  06/01/94  91,000     
The information delivered through this on-line database is provided in the spirit of open access to government information and is intended as an enhanced service and convenience for citizens of Windsor Locks, CT.
The providers of this database: Tyler CLT, Big Room Studios, and Windsor Locks, CT assume no liability for any error or omission in the information provided here.

Comments regarding this service should be directed to: tim@bigroomstudios.com

Fri. December 19, 2025 : 09:58 AM : 0.10s : 9mb Big Room Studios