Windsor Locks, CT : Assessor Database
Property Search:
Parcel ID:  Alternate ID:  Owner 1 Name:  Street Number:  Street Name: 
Property Detail:
Parcel ID:  Alternate ID/Map Block Lot:  Card:  Card:  Street Name:  Street Number:  Zoning:  LUC:  Acres: 
00182400
048-093-031-
1
1
GARRY ROAD
7
RESB
Single Family Residence
0.26
Owner Information:
Owner 1 Name: 
FERNANDEZ ELIZABETH
Owner 2 Name: 
 
Street 1: 
7 GARRY ROAD
Street 2: 
 
City: 
WINDSOR LOCKS
State: 
CT
Zip: 
06096
Volume: 
171
Page: 
661
Deed Date: 
0000-00-00
Dwelling Information:
Living Units: 
1
Style: 
RANCH
Exterior Wall: 
WOOD SHINGLE
Story Height: 
1.0
Attic: 
NONE
Basement: 
FULL
Rec Room: 
0
Finished Basement Area: 
0
Bsmt Gar Spaces: 
0
Heating System: 
OIL/HOT WATER
Central Air: 
No
Fireplaces: 
1
Year Built: 
1955
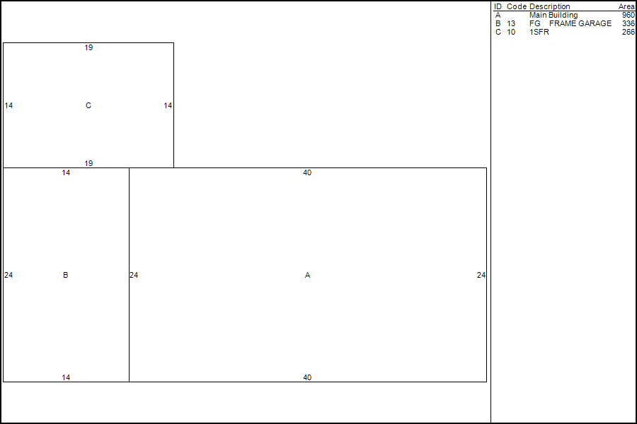
Living Area: 
1226
Unfinished Area: 
0
Rooms: 
6
Bedrooms: 
3
Full Baths: 
2
Half Baths: 
0
Valuation:
Appraised Land: 
$58,200.00
Appraised Land PA490: 
$0.00
Appraised Bldg: 
$99,500.00
Appraised Total: 
$157,700.00
Total Assessment: 
$110,390.00
Property Images:
Picture: 
Sketch: 
Sales History:
Book: Page: Sale Date: Price: Validity: Sale Type:
171  661  08/03/87       
The information delivered through this on-line database is provided in the spirit of open access to government information and is intended as an enhanced service and convenience for citizens of Windsor Locks, CT.
The providers of this database: Tyler CLT, Big Room Studios, and Windsor Locks, CT assume no liability for any error or omission in the information provided here.

Comments regarding this service should be directed to: tim@bigroomstudios.com

Fri. December 19, 2025 : 08:23 AM : 0.10s : 9mb Big Room Studios