Windsor Locks, CT : Assessor Database
Property Search:
Parcel ID:  Alternate ID:  Owner 1 Name:  Street Number:  Street Name: 
Property Detail:
Parcel ID:  Alternate ID/Map Block Lot:  Card:  Card:  Street Name:  Street Number:  Zoning:  LUC:  Acres: 
00183400
048-093-036-
1
1
GARRY ROAD
27
RESA
Single Family Residence
0.39
Owner Information:
Owner 1 Name: 
LILLIBRIDGE FAMILY IRREV TR THE
Owner 2 Name: 
LILLIBRIDGE DAVID A & DEAN A COTRUSTEES
Street 1: 
27 GARRY ROAD
Street 2: 
 
City: 
WINDSOR LOCKS
State: 
CT
Zip: 
06096
Volume: 
490
Page: 
1030
Deed Date: 
0000-00-00
Dwelling Information:
Living Units: 
1
Style: 
COLONIAL
Exterior Wall: 
ALUMINUM SIDIN
Story Height: 
2.0
Attic: 
NONE
Basement: 
FULL
Rec Room: 
0
Finished Basement Area: 
0
Bsmt Gar Spaces: 
0
Heating System: 
OIL/HOT WATER
Central Air: 
No
Fireplaces: 
0
Year Built: 
1955
Living Area: 
2226
Unfinished Area: 
0
Rooms: 
10
Bedrooms: 
5
Full Baths: 
2
Half Baths: 
0
Valuation:
Appraised Land: 
$65,200.00
Appraised Land PA490: 
$0.00
Appraised Bldg: 
$137,200.00
Appraised Total: 
$202,400.00
Total Assessment: 
$141,680.00
Property Images:
Picture: 
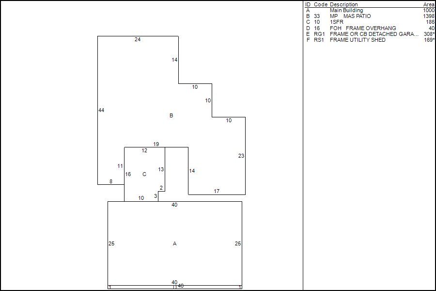
Sketch: 
Sales History:
Book: Page: Sale Date: Price: Validity: Sale Type:
72  84  05/26/59       
490  1030  12/23/19    QUIT CLAIM  IMPROVED - L&B SALE 
444  724  01/26/15    WILL  IMPROVED - L&B SALE 
441  192  08/27/14      IMPROVED - L&B SALE 
438  1028  06/17/14      IMPROVED - L&B SALE 
Out-Buildings:
Code: Description: Units: Year Built: Size1: Size2: Area: Grade: Condition:
RG1  FRAME OR CB DETACHED GARAGE  1999  308  AVERAGE 
RS1  FRAME UTILITY SHED  1999  169  AVERAGE 
The information delivered through this on-line database is provided in the spirit of open access to government information and is intended as an enhanced service and convenience for citizens of Windsor Locks, CT.
The providers of this database: Tyler CLT, Big Room Studios, and Windsor Locks, CT assume no liability for any error or omission in the information provided here.

Comments regarding this service should be directed to: tim@bigroomstudios.com

Fri. December 19, 2025 : 08:31 AM : 0.10s : 9mb Big Room Studios