Windsor Locks, CT : Assessor Database
Property Search:
Parcel ID:  Alternate ID:  Owner 1 Name:  Street Number:  Street Name: 
Property Detail:
Parcel ID:  Alternate ID/Map Block Lot:  Card:  Card:  Street Name:  Street Number:  Zoning:  LUC:  Acres: 
00198900
047-127-120-
1
1
GREENFIELD DRIVE
41
RESA
Single Family Residence
0.29
Owner Information:
Owner 1 Name: 
BRAZALOVICH ZACHARY S
Owner 2 Name: 
 
Street 1: 
41 GREENFIELD DR
Street 2: 
 
City: 
WINDSOR LOCKS
State: 
CT
Zip: 
06096
Volume: 
499
Page: 
341
Deed Date: 
0000-00-00
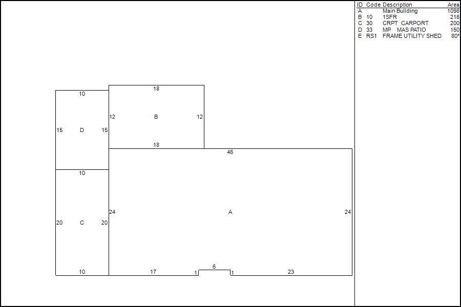
Dwelling Information:
Living Units: 
1
Style: 
RANCH
Exterior Wall: 
WOOD SHINGLE
Story Height: 
1.0
Attic: 
NONE
Basement: 
FULL
Rec Room: 
0
Finished Basement Area: 
0
Bsmt Gar Spaces: 
0
Heating System: 
OIL/HOT WATER
Central Air: 
No
Fireplaces: 
0
Year Built: 
1955
Living Area: 
1314
Unfinished Area: 
0
Rooms: 
6
Bedrooms: 
3
Full Baths: 
1
Half Baths: 
1
Valuation:
Appraised Land: 
$60,300.00
Appraised Land PA490: 
$0.00
Appraised Bldg: 
$79,500.00
Appraised Total: 
$139,800.00
Total Assessment: 
$97,860.00
Property Images:
Picture: 
Sketch: 
Sales History:
Book: Page: Sale Date: Price: Validity: Sale Type:
499  341  11/12/20  215,000  WARRANTY DEED  IMPROVED - L&B SALE 
496  11  07/30/20  110,000  WARRANTY DEED  IMPROVED - L&B SALE 
250  118  06/17/98    QUIT CLAIM  IMPROVED - L&B SALE 
Out-Buildings:
Code: Description: Units: Year Built: Size1: Size2: Area: Grade: Condition:
RS1  FRAME UTILITY SHED  1999  80  AVERAGE 
The information delivered through this on-line database is provided in the spirit of open access to government information and is intended as an enhanced service and convenience for citizens of Windsor Locks, CT.
The providers of this database: Tyler CLT, Big Room Studios, and Windsor Locks, CT assume no liability for any error or omission in the information provided here.

Comments regarding this service should be directed to: tim@bigroomstudios.com

Wed. November 5, 2025 : 01:37 PM : 0.09s : 10mb Big Room Studios