Windsor Locks, CT : Assessor Database
Property Search:
Parcel ID:  Alternate ID:  Owner 1 Name:  Street Number:  Street Name: 
Property Detail:
Parcel ID:  Alternate ID/Map Block Lot:  Card:  Card:  Street Name:  Street Number:  Zoning:  LUC:  Acres: 
00212900
040-115-021-
1
1
HALFWAY HOUSE ROAD
435
RESA
Single Family Residence
0.44
Owner Information:
Owner 1 Name: 
BARNABY NORMAN F EST
Owner 2 Name: 
 
Street 1: 
9 ROBIN RD
Street 2: 
 
City: 
WINDSOR LOCKS
State: 
CT
Zip: 
06096
Volume: 
497
Page: 
525
Deed Date: 
0000-00-00
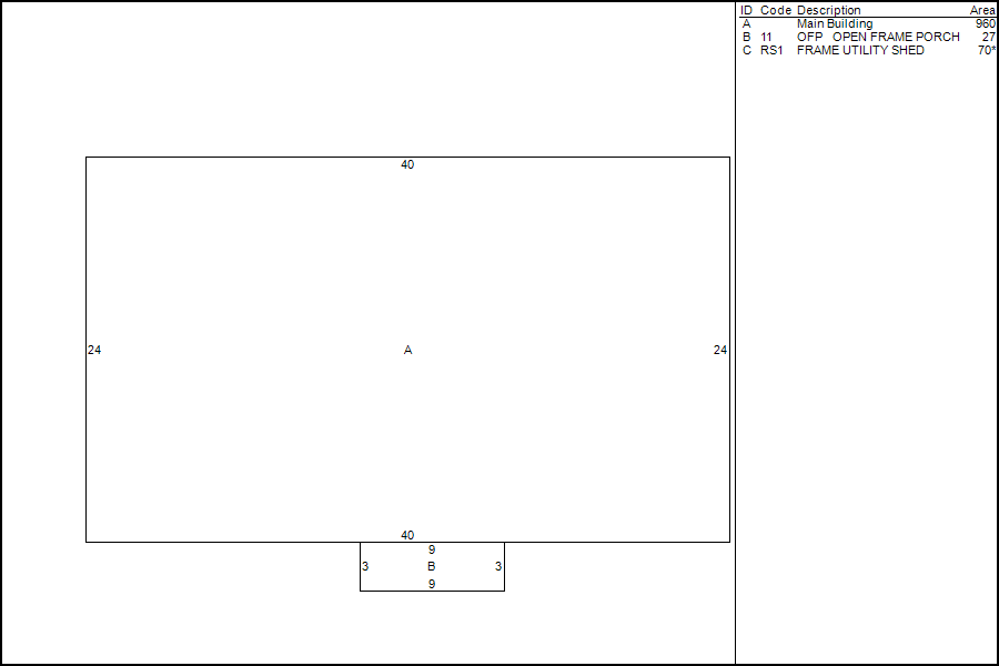
Dwelling Information:
Living Units: 
1
Style: 
RANCH
Exterior Wall: 
VINYL SIDING
Story Height: 
1.0
Attic: 
NONE
Basement: 
FULL
Rec Room: 
0
Finished Basement Area: 
0
Bsmt Gar Spaces: 
0
Heating System: 
OIL/FORCED AIR-DUC
Central Air: 
Yes
Fireplaces: 
0
Year Built: 
1952
Living Area: 
960
Unfinished Area: 
0
Rooms: 
5
Bedrooms: 
3
Full Baths: 
1
Half Baths: 
0
Valuation:
Appraised Land: 
$59,900.00
Appraised Land PA490: 
$0.00
Appraised Bldg: 
$77,800.00
Appraised Total: 
$137,700.00
Total Assessment: 
$96,390.00
Property Images:
Picture: 
Sketch: 
Sales History:
Book: Page: Sale Date: Price: Validity: Sale Type:
497  525  09/17/20    PROBATE CERT.  IMPROVED - L&B SALE 
475  377  04/24/18  130,000  VERIF BY DEED OR ASSURANCE  IMPROVED - L&B SALE 
474  384  03/05/18    WILL  IMPROVED - L&B SALE 
134  109  06/13/79       
Out-Buildings:
Code: Description: Units: Year Built: Size1: Size2: Area: Grade: Condition:
RS1  FRAME UTILITY SHED  1999  70  POOR 
The information delivered through this on-line database is provided in the spirit of open access to government information and is intended as an enhanced service and convenience for citizens of Windsor Locks, CT.
The providers of this database: Tyler CLT, Big Room Studios, and Windsor Locks, CT assume no liability for any error or omission in the information provided here.

Comments regarding this service should be directed to: tim@bigroomstudios.com

Tue. December 16, 2025 : 08:35 AM : 0.10s : 9mb Big Room Studios