Windsor Locks, CT : Assessor Database
Property Search:
Parcel ID:  Alternate ID:  Owner 1 Name:  Street Number:  Street Name: 
Property Detail:
Parcel ID:  Alternate ID/Map Block Lot:  Card:  Card:  Street Name:  Street Number:  Zoning:  LUC:  Acres: 
00249400
018-036-019-
1
1
LESLIE STREET
82
RESB
Single Family Residence
0.35
Owner Information:
Owner 1 Name: 
DIBIASE DIANE M & CARISEO MICHAEL J
Owner 2 Name: 
 
Street 1: 
82 LESLIE STREET
Street 2: 
 
City: 
WINDSOR LOCKS
State: 
CT
Zip: 
06096
Volume: 
281
Page: 
542
Deed Date: 
0000-00-00
Dwelling Information:
Living Units: 
1
Style: 
RANCH
Exterior Wall: 
VINYL SIDING
Story Height: 
1.0
Attic: 
NONE
Basement: 
FULL
Rec Room: 
0
Finished Basement Area: 
0
Bsmt Gar Spaces: 
0
Heating System: 
GAS/FORCED AIR-DUC
Central Air: 
No
Fireplaces: 
1
Year Built: 
1966
Living Area: 
1254
Unfinished Area: 
0
Rooms: 
6
Bedrooms: 
3
Full Baths: 
2
Half Baths: 
0
Valuation:
Appraised Land: 
$64,000.00
Appraised Land PA490: 
$0.00
Appraised Bldg: 
$112,200.00
Appraised Total: 
$176,200.00
Total Assessment: 
$123,340.00
Property Images:
Picture: 
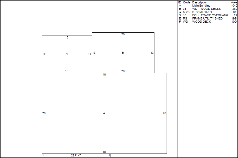
Sketch: 
Sales History:
Book: Page: Sale Date: Price: Validity: Sale Type:
281  542  12/26/01  67,500    IMPROVED - L&B SALE 
193  19  03/21/90       
Out-Buildings:
Code: Description: Units: Year Built: Size1: Size2: Area: Grade: Condition:
RS1  FRAME UTILITY SHED  1999  192  GOOD 
WD1  WOOD DECK  2017  100  EXCELLENT 
The information delivered through this on-line database is provided in the spirit of open access to government information and is intended as an enhanced service and convenience for citizens of Windsor Locks, CT.
The providers of this database: Tyler CLT, Big Room Studios, and Windsor Locks, CT assume no liability for any error or omission in the information provided here.

Comments regarding this service should be directed to: tim@bigroomstudios.com

Wed. November 5, 2025 : 01:41 PM : 0.10s : 9mb Big Room Studios