Windsor Locks, CT : Assessor Database
Property Search:
Parcel ID:  Alternate ID:  Owner 1 Name:  Street Number:  Street Name: 
Property Detail:
Parcel ID:  Alternate ID/Map Block Lot:  Card:  Card:  Street Name:  Street Number:  Zoning:  LUC:  Acres: 
00254000
040-122-022-
1
1
LITCHFIELD DRIVE
449
RESA
Single Family Residence
0.22
Owner Information:
Owner 1 Name: 
COLLIER TRACEY J
Owner 2 Name: 
 
Street 1: 
449 LITCHFIELD DR
Street 2: 
 
City: 
WINDSOR LOCKS
State: 
CT
Zip: 
06096
Volume: 
445
Page: 
899
Deed Date: 
0000-00-00
Dwelling Information:
Living Units: 
1
Style: 
RANCH
Exterior Wall: 
VINYL SIDING
Story Height: 
1.0
Attic: 
NONE
Basement: 
NONE
Rec Room: 
0
Finished Basement Area: 
0
Bsmt Gar Spaces: 
0
Heating System: 
GAS/FORCED AIR-DUC
Central Air: 
No
Fireplaces: 
0
Year Built: 
1952
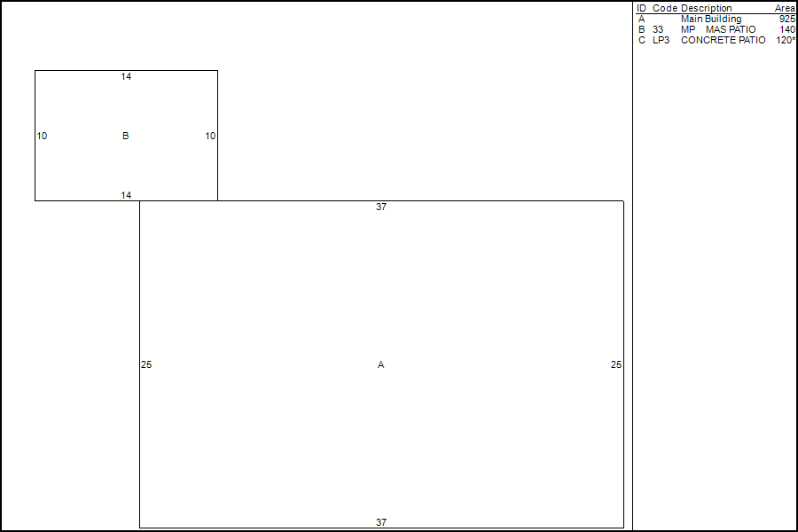
Living Area: 
925
Unfinished Area: 
0
Rooms: 
5
Bedrooms: 
2
Full Baths: 
1
Half Baths: 
0
Valuation:
Appraised Land: 
$49,900.00
Appraised Land PA490: 
$0.00
Appraised Bldg: 
$68,400.00
Appraised Total: 
$118,300.00
Total Assessment: 
$82,810.00
Property Images:
Picture: 
Sketch: 
Sales History:
Book: Page: Sale Date: Price: Validity: Sale Type:
445  899  03/27/15  127,000  VERIF BY DEED OR ASSURANCE  IMPROVED - L&B SALE 
427  104  04/16/13    SALE OF FORCLOSED PROP  IMPROVED - L&B SALE 
422  243  10/17/12      IMPROVED - L&B SALE 
422  171  10/15/12      IMPROVED - L&B SALE 
305  411  07/01/03  128,000  VERIF BY DEED OR ASSURANCE  IMPROVED - L&B SALE 
226  499  01/13/95  82,000     
Out-Buildings:
Code: Description: Units: Year Built: Size1: Size2: Area: Grade: Condition:
LP3  CONCRETE PATIO  2007  120  AVERAGE 
The information delivered through this on-line database is provided in the spirit of open access to government information and is intended as an enhanced service and convenience for citizens of Windsor Locks, CT.
The providers of this database: Tyler CLT, Big Room Studios, and Windsor Locks, CT assume no liability for any error or omission in the information provided here.

Comments regarding this service should be directed to: tim@bigroomstudios.com

Fri. December 19, 2025 : 09:56 AM : 0.10s : 9mb Big Room Studios