Windsor Locks, CT : Assessor Database
Property Search:
Parcel ID:  Alternate ID:  Owner 1 Name:  Street Number:  Street Name: 
Property Detail:
Parcel ID:  Alternate ID/Map Block Lot:  Card:  Card:  Street Name:  Street Number:  Zoning:  LUC:  Acres: 
00285700
035-080-048-
1
1
NORMAN AVENUE
11
RESA
Single Family Residence
0.50
Owner Information:
Owner 1 Name: 
GONZALEZ NICHOLE
Owner 2 Name: 
 
Street 1: 
11 NORMAN AVE
Street 2: 
 
City: 
WINDSOR LOCKS
State: 
CT
Zip: 
06096
Volume: 
468
Page: 
686
Deed Date: 
0000-00-00
Dwelling Information:
Living Units: 
1
Style: 
CAPE COD
Exterior Wall: 
VINYL SIDING
Story Height: 
1.5
Attic: 
NONE
Basement: 
FULL
Rec Room: 
0
Finished Basement Area: 
0
Bsmt Gar Spaces: 
0
Heating System: 
OIL/HOT WATER
Central Air: 
No
Fireplaces: 
1
Year Built: 
1953
Living Area: 
1572
Unfinished Area: 
0
Rooms: 
7
Bedrooms: 
3
Full Baths: 
1
Half Baths: 
0
Valuation:
Appraised Land: 
$71,400.00
Appraised Land PA490: 
$0.00
Appraised Bldg: 
$108,500.00
Appraised Total: 
$179,900.00
Total Assessment: 
$125,930.00
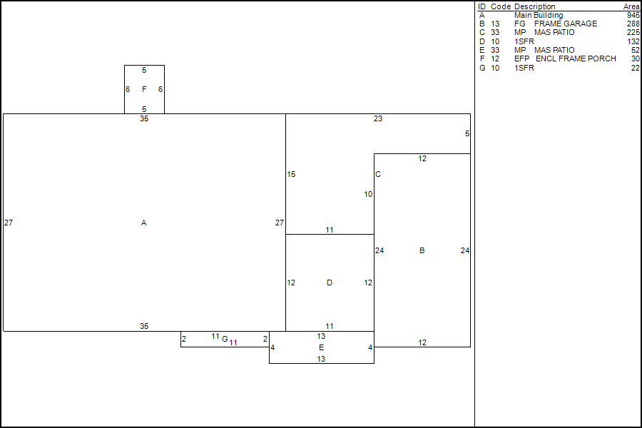
Property Images:
Picture: 
Sketch: 
Sales History:
Book: Page: Sale Date: Price: Validity: Sale Type:
468  686  07/31/17  195,000  VERIF BY DEED OR ASSURANCE  IMPROVED - L&B SALE 
464  850  03/22/17    WILL  IMPROVED - L&B SALE 
214  106  04/30/93      VACANT - LAND ONLY SALE 
The information delivered through this on-line database is provided in the spirit of open access to government information and is intended as an enhanced service and convenience for citizens of Windsor Locks, CT.
The providers of this database: Tyler CLT, Big Room Studios, and Windsor Locks, CT assume no liability for any error or omission in the information provided here.

Comments regarding this service should be directed to: tim@bigroomstudios.com

Fri. December 19, 2025 : 08:24 AM : 0.11s : 9mb Big Room Studios