Windsor Locks, CT : Assessor Database
Property Search:
Parcel ID:  Alternate ID:  Owner 1 Name:  Street Number:  Street Name: 
Property Detail:
Parcel ID:  Alternate ID/Map Block Lot:  Card:  Card:  Street Name:  Street Number:  Zoning:  LUC:  Acres: 
00294900
020-002-164-
1
1
NORTH STREET
43
RESB
Single Family Residence
0.34
Owner Information:
Owner 1 Name: 
RAVALESE PATSY
Owner 2 Name: 
 
Street 1: 
43 NORTH ST
Street 2: 
 
City: 
WINDSOR LOCKS
State: 
CT
Zip: 
06096
Volume: 
478
Page: 
756
Deed Date: 
0000-00-00
Dwelling Information:
Living Units: 
1
Style: 
COLONIAL
Exterior Wall: 
VINYL SIDING
Story Height: 
2.0
Attic: 
NONE
Basement: 
FULL
Rec Room: 
0
Finished Basement Area: 
0
Bsmt Gar Spaces: 
0
Heating System: 
OIL/HOT WATER
Central Air: 
No
Fireplaces: 
0
Year Built: 
1925
Living Area: 
1056
Unfinished Area: 
0
Rooms: 
5
Bedrooms: 
3
Full Baths: 
2
Half Baths: 
0
Valuation:
Appraised Land: 
$57,400.00
Appraised Land PA490: 
$0.00
Appraised Bldg: 
$92,000.00
Appraised Total: 
$149,400.00
Total Assessment: 
$104,580.00
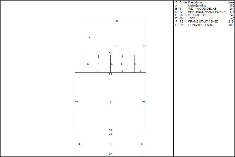
Property Images:
Picture: 
Sketch: 
Sales History:
Book: Page: Sale Date: Price: Validity: Sale Type:
478  756  08/28/18  157,000  VERIF BY DEED OR ASSURANCE  IMPROVED - L&B SALE 
462  52  11/09/16  71,200  SALE TO OR FROM GOVERNMENT  IMPROVED - L&B SALE 
459  1095  08/30/16  10  SALE OF FORCLOSED PROP  IMPROVED - L&B SALE 
438  27  05/27/14    SALE OF FORCLOSED PROP  IMPROVED - L&B SALE 
388  1130  04/16/09    OTHER  IMPROVED - L&B SALE 
388  1131  04/16/09      IMPROVED - L&B SALE 
377  1020  03/31/08  171,000  VERIF BY DEED OR ASSURANCE  IMPROVED - L&B SALE 
224  430  08/19/94  69,900     
Out-Buildings:
Code: Description: Units: Year Built: Size1: Size2: Area: Grade: Condition:
RS1  FRAME UTILITY SHED  1999  216  AVERAGE 
LP3  CONCRETE PATIO  2007  400  AVERAGE 
The information delivered through this on-line database is provided in the spirit of open access to government information and is intended as an enhanced service and convenience for citizens of Windsor Locks, CT.
The providers of this database: Tyler CLT, Big Room Studios, and Windsor Locks, CT assume no liability for any error or omission in the information provided here.

Comments regarding this service should be directed to: tim@bigroomstudios.com

Wed. November 5, 2025 : 03:17 PM : 0.10s : 9mb Big Room Studios