Windsor Locks, CT : Assessor Database
Property Search:
Parcel ID:  Alternate ID:  Owner 1 Name:  Street Number:  Street Name: 
Property Detail:
Parcel ID:  Alternate ID/Map Block Lot:  Card:  Card:  Street Name:  Street Number:  Zoning:  LUC:  Acres: 
00297341
019-002-131-0042
1
1
CHAPMAN CHASE
7
 
Plan Dev
0.00
Owner Information:
Owner 1 Name: 
MURDOCK MICHAEL T & MARJORIE E
Owner 2 Name: 
 
Street 1: 
7 CHAPMAN CHASE
Street 2: 
 
City: 
WINDSOR LOCKS
State: 
CT
Zip: 
06096
Volume: 
444
Page: 
669
Deed Date: 
0000-00-00
Dwelling Information:
Living Units: 
1
Style: 
CONDO
Exterior Wall: 
 
Story Height: 
1.5
Attic: 
NONE
Basement: 
FULL
Rec Room: 
800
Finished Basement Area: 
0
Bsmt Gar Spaces: 
0
Heating System: 
GAS/FORCED AIR-DUC
Central Air: 
Yes
Fireplaces: 
0
Year Built: 
2014
Living Area: 
2300
Unfinished Area: 
0
Rooms: 
6
Bedrooms: 
3
Full Baths: 
2
Half Baths: 
1
Valuation:
Appraised Land: 
$0.00
Appraised Land PA490: 
$0.00
Appraised Bldg: 
$304,500.00
Appraised Total: 
$304,500.00
Total Assessment: 
$213,150.00
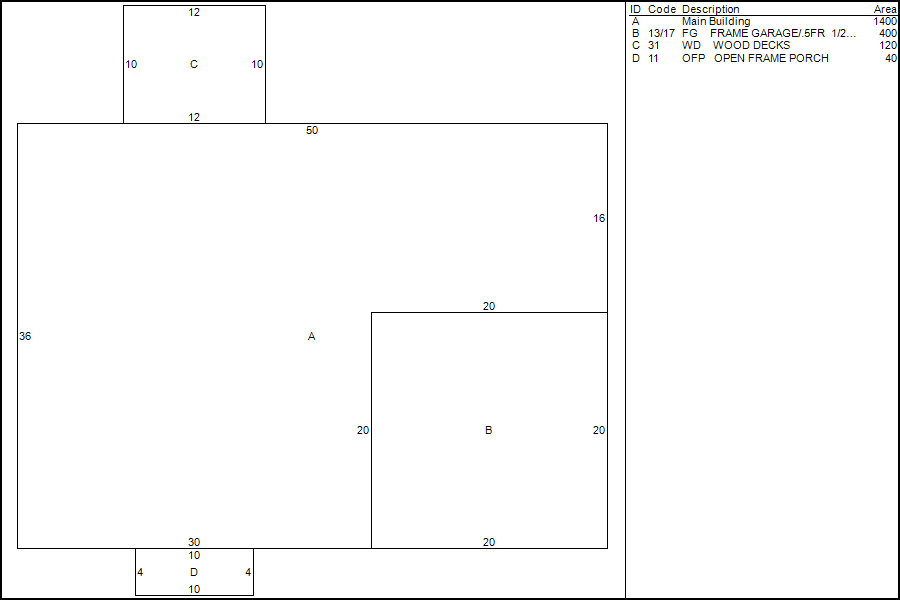
Property Images:
Picture: 
Sketch: 
Sales History:
Book: Page: Sale Date: Price: Validity: Sale Type:
444  669  01/26/15  260,000  VERIF BY DEED OR ASSURANCE  BUILDING ONLY 
356  528  07/13/06  225,000    VACANT - LAND ONLY SALE 
352  106  04/05/06  2,000,000    VACANT - LAND ONLY SALE 
241  603  04/28/97      VACANT - LAND ONLY SALE 
229  225  06/20/95      VACANT - LAND ONLY SALE 
The information delivered through this on-line database is provided in the spirit of open access to government information and is intended as an enhanced service and convenience for citizens of Windsor Locks, CT.
The providers of this database: Tyler CLT, Big Room Studios, and Windsor Locks, CT assume no liability for any error or omission in the information provided here.

Comments regarding this service should be directed to: tim@bigroomstudios.com

Wed. November 5, 2025 : 03:15 PM : 0.09s : 9mb Big Room Studios