Windsor Locks, CT : Assessor Database
Property Search:
Parcel ID:  Alternate ID:  Owner 1 Name:  Street Number:  Street Name: 
Property Detail:
Parcel ID:  Alternate ID/Map Block Lot:  Card:  Card:  Street Name:  Street Number:  Zoning:  LUC:  Acres: 
00333300
021-014-006-
1
1
OLIVE STREET
11
RA
Single Family Residence
0.15
Owner Information:
Owner 1 Name: 
LYNSKEY JOAN W
Owner 2 Name: 
 
Street 1: 
11 OLIVE STREET
Street 2: 
 
City: 
WINDSOR LOCKS
State: 
CT
Zip: 
06096
Volume: 
442
Page: 
262
Deed Date: 
0000-00-00
Dwelling Information:
Living Units: 
1
Style: 
CONVENTIONAL
Exterior Wall: 
ALUMINUM SIDIN
Story Height: 
2.0
Attic: 
FULL FINISH
Basement: 
FULL
Rec Room: 
0
Finished Basement Area: 
0
Bsmt Gar Spaces: 
0
Heating System: 
OIL/HOT WATER
Central Air: 
No
Fireplaces: 
0
Year Built: 
1900
Living Area: 
1969
Unfinished Area: 
0
Rooms: 
7
Bedrooms: 
4
Full Baths: 
1
Half Baths: 
0
Valuation:
Appraised Land: 
$45,500.00
Appraised Land PA490: 
$0.00
Appraised Bldg: 
$104,600.00
Appraised Total: 
$150,100.00
Total Assessment: 
$105,070.00
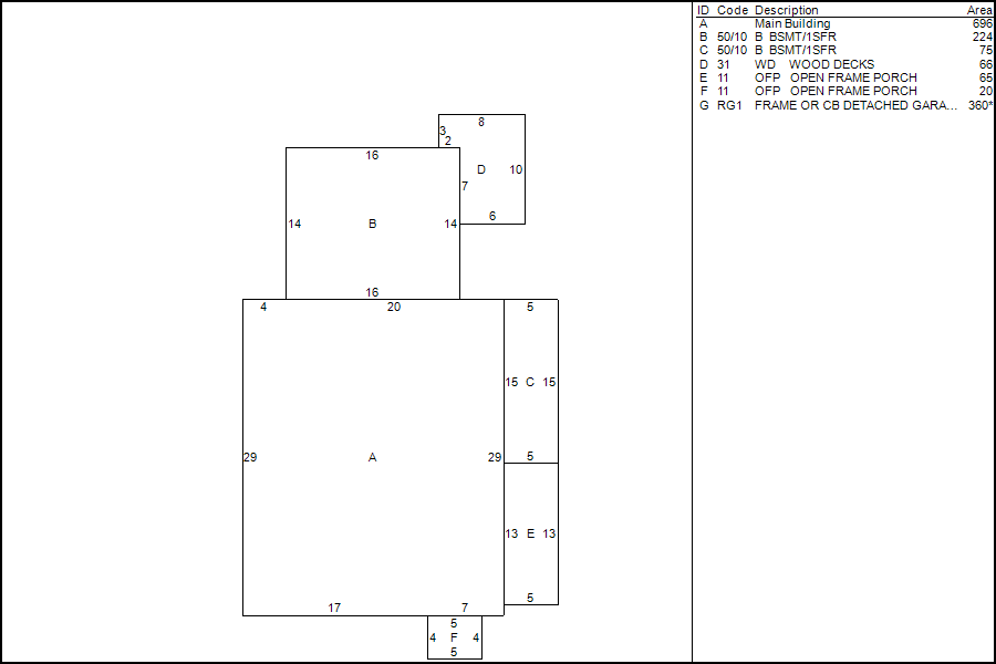
Property Images:
Picture: 
Sketch: 
Sales History:
Book: Page: Sale Date: Price: Validity: Sale Type:
442  262  10/16/14    OTHER  IMPROVED - L&B SALE 
213  214  03/15/93       
Out-Buildings:
Code: Description: Units: Year Built: Size1: Size2: Area: Grade: Condition:
RG1  FRAME OR CB DETACHED GARAGE  1998  360  AVERAGE 
The information delivered through this on-line database is provided in the spirit of open access to government information and is intended as an enhanced service and convenience for citizens of Windsor Locks, CT.
The providers of this database: Tyler CLT, Big Room Studios, and Windsor Locks, CT assume no liability for any error or omission in the information provided here.

Comments regarding this service should be directed to: tim@bigroomstudios.com

Fri. December 19, 2025 : 09:59 AM : 0.10s : 10mb Big Room Studios