Windsor Locks, CT : Assessor Database
Property Search:
Parcel ID:  Alternate ID:  Owner 1 Name:  Street Number:  Street Name: 
Property Detail:
Parcel ID:  Alternate ID/Map Block Lot:  Card:  Card:  Street Name:  Street Number:  Zoning:  LUC:  Acres: 
00340000
013-010-013-
1
1
PEARL STREET
25
RA
Single Family Residence
0.22
Owner Information:
Owner 1 Name: 
GUERRIERO GRACE & JOSEPH LU
Owner 2 Name: 
MARTINELLI SHARON MOBIGLIA ROB &
Street 1: 
25 PEARL ST
Street 2: 
 
City: 
WINDSOR LOCKS
State: 
CT
Zip: 
06096
Volume: 
343
Page: 
62
Deed Date: 
0000-00-00
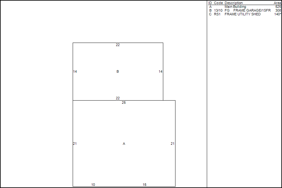
Dwelling Information:
Living Units: 
1
Style: 
CAPE COD
Exterior Wall: 
ALUMINUM SIDIN
Story Height: 
1.7
Attic: 
NONE
Basement: 
FULL
Rec Room: 
0
Finished Basement Area: 
0
Bsmt Gar Spaces: 
0
Heating System: 
OIL/FORCED AIR-DUC
Central Air: 
Yes
Fireplaces: 
1
Year Built: 
1951
Living Area: 
1227
Unfinished Area: 
0
Rooms: 
7
Bedrooms: 
4
Full Baths: 
1
Half Baths: 
0
Valuation:
Appraised Land: 
$55,400.00
Appraised Land PA490: 
$0.00
Appraised Bldg: 
$116,800.00
Appraised Total: 
$172,200.00
Total Assessment: 
$120,540.00
Property Images:
Picture: 
Sketch: 
Sales History:
Book: Page: Sale Date: Price: Validity: Sale Type:
343  62  08/29/05      IMPROVED - L&B SALE 
159  730  05/30/86      IMPROVED - L&B SALE 
Out-Buildings:
Code: Description: Units: Year Built: Size1: Size2: Area: Grade: Condition:
RS1  FRAME UTILITY SHED  2001  140  GOOD 
The information delivered through this on-line database is provided in the spirit of open access to government information and is intended as an enhanced service and convenience for citizens of Windsor Locks, CT.
The providers of this database: Tyler CLT, Big Room Studios, and Windsor Locks, CT assume no liability for any error or omission in the information provided here.

Comments regarding this service should be directed to: tim@bigroomstudios.com

Thu. November 20, 2025 : 05:52 AM : 0.09s : 9mb Big Room Studios