Windsor Locks, CT : Assessor Database
Property Search:
Parcel ID:  Alternate ID:  Owner 1 Name:  Street Number:  Street Name: 
Property Detail:
Parcel ID:  Alternate ID/Map Block Lot:  Card:  Card:  Street Name:  Street Number:  Zoning:  LUC:  Acres: 
00408100
046-112-006-
1
1
SOUTHWEST AVENUE
229
RESA
Single Family Residence
0.45
Owner Information:
Owner 1 Name: 
HALLIWELL BRUCE B
Owner 2 Name: 
 
Street 1: 
229 SOUTHWEST AVENUE
Street 2: 
 
City: 
WINDSOR LOCKS
State: 
CT
Zip: 
06096
Volume: 
479
Page: 
321
Deed Date: 
0000-00-00
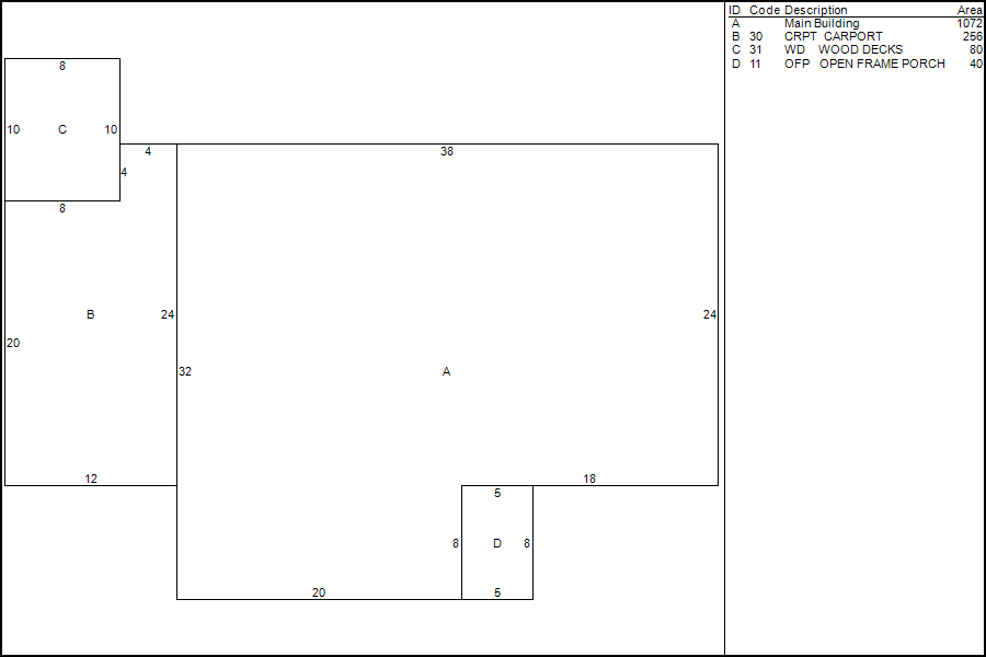
Dwelling Information:
Living Units: 
1
Style: 
RANCH
Exterior Wall: 
WOOD SHINGLE
Story Height: 
1.0
Attic: 
NONE
Basement: 
FULL
Rec Room: 
0
Finished Basement Area: 
0
Bsmt Gar Spaces: 
0
Heating System: 
OIL/HOT WATER
Central Air: 
No
Fireplaces: 
1
Year Built: 
1957
Living Area: 
1072
Unfinished Area: 
0
Rooms: 
5
Bedrooms: 
3
Full Baths: 
1
Half Baths: 
0
Valuation:
Appraised Land: 
$66,800.00
Appraised Land PA490: 
$0.00
Appraised Bldg: 
$84,300.00
Appraised Total: 
$151,100.00
Total Assessment: 
$105,770.00
Property Images:
Picture: 
Sketch: 
Sales History:
Book: Page: Sale Date: Price: Validity: Sale Type:
479  321  09/19/18      IMPROVED - L&B SALE 
264  379  04/10/00    VERIF BY DEED OR ASSURANCE  VACANT - LAND ONLY SALE 
221  881  04/11/94       
The information delivered through this on-line database is provided in the spirit of open access to government information and is intended as an enhanced service and convenience for citizens of Windsor Locks, CT.
The providers of this database: Tyler CLT, Big Room Studios, and Windsor Locks, CT assume no liability for any error or omission in the information provided here.

Comments regarding this service should be directed to: tim@bigroomstudios.com

Tue. November 25, 2025 : 02:16 PM : 0.07s : 9mb Big Room Studios