Windsor Locks, CT : Assessor Database
Property Search:
Parcel ID:  Alternate ID:  Owner 1 Name:  Street Number:  Street Name: 
Property Detail:
Parcel ID:  Alternate ID/Map Block Lot:  Card:  Card:  Street Name:  Street Number:  Zoning:  LUC:  Acres: 
00412400
028-051-020-
1
1
SPRING STREET
97
RESA
Single Family Residence
0.18
Owner Information:
Owner 1 Name: 
WATSON ROBERT & ADELE
Owner 2 Name: 
 
Street 1: 
97 SPRING STREET
Street 2: 
 
City: 
WINDSOR LOCKS
State: 
CT
Zip: 
06096
Volume: 
192
Page: 
416
Deed Date: 
0000-00-00
Dwelling Information:
Living Units: 
1
Style: 
CONVENTIONAL
Exterior Wall: 
ALUMINUM SIDIN
Story Height: 
2.0
Attic: 
NONE
Basement: 
FULL
Rec Room: 
0
Finished Basement Area: 
0
Bsmt Gar Spaces: 
0
Heating System: 
OIL/HOT WATER
Central Air: 
No
Fireplaces: 
0
Year Built: 
1900
Living Area: 
1736
Unfinished Area: 
0
Rooms: 
9
Bedrooms: 
5
Full Baths: 
2
Half Baths: 
0
Valuation:
Appraised Land: 
$52,700.00
Appraised Land PA490: 
$0.00
Appraised Bldg: 
$104,700.00
Appraised Total: 
$157,400.00
Total Assessment: 
$110,180.00
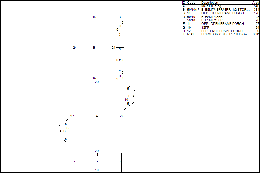
Property Images:
Picture: 
Sketch: 
Sales History:
Book: Page: Sale Date: Price: Validity: Sale Type:
192  416  02/20/90       
Out-Buildings:
Code: Description: Units: Year Built: Size1: Size2: Area: Grade: Condition:
RG1  FRAME OR CB DETACHED GARAGE  1999  308  FAIR 
The information delivered through this on-line database is provided in the spirit of open access to government information and is intended as an enhanced service and convenience for citizens of Windsor Locks, CT.
The providers of this database: Tyler CLT, Big Room Studios, and Windsor Locks, CT assume no liability for any error or omission in the information provided here.

Comments regarding this service should be directed to: tim@bigroomstudios.com

Fri. December 19, 2025 : 08:25 AM : 0.10s : 9mb Big Room Studios