Windsor Locks, CT : Assessor Database
Property Search:
Parcel ID:  Alternate ID:  Owner 1 Name:  Street Number:  Street Name: 
Property Detail:
Parcel ID:  Alternate ID/Map Block Lot:  Card:  Card:  Street Name:  Street Number:  Zoning:  LUC:  Acres: 
00412700
028-061-042-
1
1
SPRING STREET
102
RESA
Two Family
0.14
Owner Information:
Owner 1 Name: 
ASSIGNON KOSSIVI
Owner 2 Name: 
 
Street 1: 
23 CORNWALL DR
Street 2: 
 
City: 
WINDSOR LOCKS
State: 
CT
Zip: 
06096
Volume: 
502
Page: 
293
Deed Date: 
0000-00-00
Dwelling Information:
Living Units: 
2
Style: 
FAMILY CONVER.
Exterior Wall: 
CLAPBOARD
Story Height: 
2.0
Attic: 
NONE
Basement: 
FULL
Rec Room: 
0
Finished Basement Area: 
0
Bsmt Gar Spaces: 
0
Heating System: 
GAS/HOT WATER
Central Air: 
No
Fireplaces: 
0
Year Built: 
1850
Living Area: 
2002
Unfinished Area: 
0
Rooms: 
9
Bedrooms: 
4
Full Baths: 
2
Half Baths: 
0
Valuation:
Appraised Land: 
$49,900.00
Appraised Land PA490: 
$0.00
Appraised Bldg: 
$102,100.00
Appraised Total: 
$152,000.00
Total Assessment: 
$106,400.00
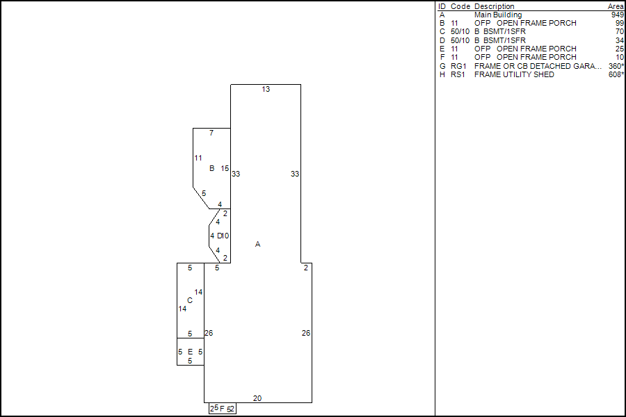
Property Images:
Picture: 
Sketch: 
Sales History:
Book: Page: Sale Date: Price: Validity: Sale Type:
97  509  02/28/67       
502  293  02/09/21  215,000  WARRANTY DEED  IMPROVED - L&B SALE 
502  293  02/09/21  215,000  WARRANTY DEED  IMPROVED - L&B SALE 
480  882  11/21/18  75,180  SALE OF FORCLOSED PROP  IMPROVED - L&B SALE 
476  169  06/05/18  112,328  SALE OF FORCLOSED PROP  IMPROVED - L&B SALE 
284  705  03/27/02  135,000  VERIF BY DEED OR ASSURANCE  IMPROVED - L&B SALE 
263  653  02/28/00  81,900  VERIF BY DEED OR ASSURANCE  VACANT - LAND ONLY SALE 
Out-Buildings:
Code: Description: Units: Year Built: Size1: Size2: Area: Grade: Condition:
RG1  FRAME OR CB DETACHED GARAGE  1999  360  FAIR 
RS1  FRAME UTILITY SHED  1999  608  POOR 
The information delivered through this on-line database is provided in the spirit of open access to government information and is intended as an enhanced service and convenience for citizens of Windsor Locks, CT.
The providers of this database: Tyler CLT, Big Room Studios, and Windsor Locks, CT assume no liability for any error or omission in the information provided here.

Comments regarding this service should be directed to: tim@bigroomstudios.com

Fri. December 19, 2025 : 09:58 AM : 0.10s : 10mb Big Room Studios