Windsor Locks, CT : Assessor Database
Property Search:
Parcel ID:  Alternate ID:  Owner 1 Name:  Street Number:  Street Name: 
Property Detail:
Parcel ID:  Alternate ID/Map Block Lot:  Card:  Card:  Street Name:  Street Number:  Zoning:  LUC:  Acres: 
00421012
034-063-023-0012
1
1
GLENBROOK DRIVE
23
MFSD
Residential Condominium
0.00
Owner Information:
Owner 1 Name: 
MORELLO MICHAEL G JR & TIMOTHY P &
Owner 2 Name: 
WILLIAM B
Street 1: 
23 GLENBROOK DRIVE
Street 2: 
 
City: 
WINDSOR LOCKS
State: 
CT
Zip: 
06096
Volume: 
512
Page: 
425
Deed Date: 
0000-00-00
Dwelling Information:
Living Units: 
1
Style: 
CONDO
Exterior Wall: 
 
Story Height: 
1.0
Attic: 
NONE
Basement: 
FULL
Rec Room: 
408
Finished Basement Area: 
0
Bsmt Gar Spaces: 
0
Heating System: 
GAS/FORCED AIR-DUC
Central Air: 
Yes
Fireplaces: 
0
Year Built: 
2002
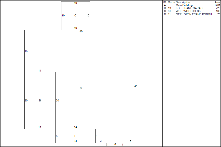
Living Area: 
1261
Unfinished Area: 
0
Rooms: 
4
Bedrooms: 
2
Full Baths: 
2
Half Baths: 
0
Valuation:
Appraised Land: 
$0.00
Appraised Land PA490: 
$0.00
Appraised Bldg: 
$172,100.00
Appraised Total: 
$172,100.00
Total Assessment: 
$120,470.00
Property Images:
Picture: 
Sketch: 
Sales History:
Book: Page: Sale Date: Price: Validity: Sale Type:
512  425  11/01/21    PROBATE CERT.  IMPROVED - L&B SALE 
512  425  11/01/21    PROBATE CERT.  IMPROVED - L&B SALE 
472  574  12/26/17    PROBATE CERT.  IMPROVED - L&B SALE 
472  574  12/26/17    PROBATE CERT.  IMPROVED - L&B SALE 
434  945  12/03/13    IMPROVED - L&B SALE 
390  1153  06/12/09  217,900  VERIF BY DEED OR ASSURANCE  IMPROVED - L&B SALE 
389  573  05/04/09    WILL  IMPROVED - L&B SALE 
292  12  10/08/02      IMPROVED - L&B SALE 
292  183  08/26/02  183,055  VERIF BY DEED OR ASSURANCE  IMPROVED - L&B SALE 
266  731  07/13/00  180,000  VERIF BY DEED OR ASSURANCE   
The information delivered through this on-line database is provided in the spirit of open access to government information and is intended as an enhanced service and convenience for citizens of Windsor Locks, CT.
The providers of this database: Tyler CLT, Big Room Studios, and Windsor Locks, CT assume no liability for any error or omission in the information provided here.

Comments regarding this service should be directed to: tim@bigroomstudios.com

Fri. December 19, 2025 : 08:27 AM : 0.09s : 9mb Big Room Studios