Windsor Locks, CT : Assessor Database
Property Search:
Parcel ID:  Alternate ID:  Owner 1 Name:  Street Number:  Street Name: 
Property Detail:
Parcel ID:  Alternate ID/Map Block Lot:  Card:  Card:  Street Name:  Street Number:  Zoning:  LUC:  Acres: 
00421015
034-063-023-0015
1
1
GLENBROOK DRIVE
12
MFSD
Residential Condominium
0.00
Owner Information:
Owner 1 Name: 
GRIFFIN MARGARET A TR
Owner 2 Name: 
MARGARET A GRIFFIN TR
Street 1: 
12 GLENBROOK DR
Street 2: 
 
City: 
WINDSOR LOCKS
State: 
CT
Zip: 
06096
Volume: 
282
Page: 
122
Deed Date: 
0000-00-00
Dwelling Information:
Living Units: 
1
Style: 
CONDO
Exterior Wall: 
 
Story Height: 
1.0
Attic: 
NONE
Basement: 
FULL
Rec Room: 
0
Finished Basement Area: 
0
Bsmt Gar Spaces: 
0
Heating System: 
GAS/FORCED AIR-DUC
Central Air: 
Yes
Fireplaces: 
0
Year Built: 
2001
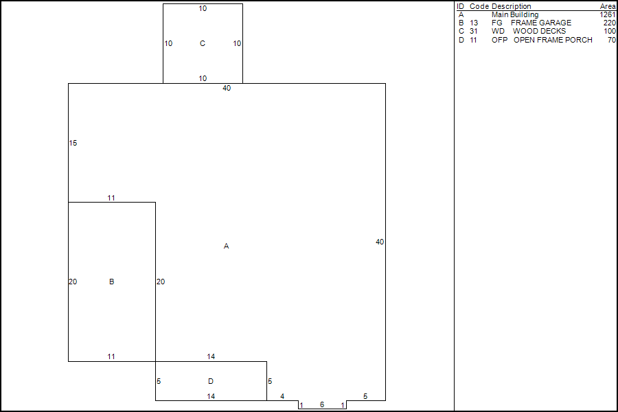
Living Area: 
1261
Unfinished Area: 
0
Rooms: 
4
Bedrooms: 
2
Full Baths: 
2
Half Baths: 
0
Valuation:
Appraised Land: 
$0.00
Appraised Land PA490: 
$0.00
Appraised Bldg: 
$165,200.00
Appraised Total: 
$165,200.00
Total Assessment: 
$115,640.00
Property Images:
Picture: 
Sketch: 
Sales History:
Book: Page: Sale Date: Price: Validity: Sale Type:
282  122  01/07/02  168,825  VERIF BY DEED OR ASSURANCE  IMPROVED - L&B SALE 
266  731  07/13/00  180,000  VERIF BY DEED OR ASSURANCE   
The information delivered through this on-line database is provided in the spirit of open access to government information and is intended as an enhanced service and convenience for citizens of Windsor Locks, CT.
The providers of this database: Tyler CLT, Big Room Studios, and Windsor Locks, CT assume no liability for any error or omission in the information provided here.

Comments regarding this service should be directed to: tim@bigroomstudios.com

Fri. December 19, 2025 : 06:34 AM : 0.10s : 9mb Big Room Studios