Windsor Locks, CT : Assessor Database
Property Search:
Parcel ID:  Alternate ID:  Owner 1 Name:  Street Number:  Street Name: 
Property Detail:
Parcel ID:  Alternate ID/Map Block Lot:  Card:  Card:  Street Name:  Street Number:  Zoning:  LUC:  Acres: 
00424500
041-076-113-
1
1
STEVENS STREET
47
RESA
Single Family Residence
0.64
Owner Information:
Owner 1 Name: 
SHAPIRO ELIAS & EDITH M TRS
Owner 2 Name: 
SHAPIRO FAMILY LIVING TR
Street 1: 
47 STEVENS ST
Street 2: 
 
City: 
WINDSOR LOCKS
State: 
CT
Zip: 
06096
Volume: 
227
Page: 
595
Deed Date: 
0000-00-00
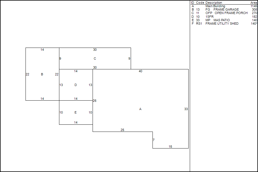
Dwelling Information:
Living Units: 
1
Style: 
RANCH
Exterior Wall: 
VINYL SIDING
Story Height: 
1.0
Attic: 
NONE
Basement: 
FULL
Rec Room: 
391
Finished Basement Area: 
0
Bsmt Gar Spaces: 
0
Heating System: 
OIL/HOT WATER
Central Air: 
No
Fireplaces: 
1
Year Built: 
1957
Living Area: 
1327
Unfinished Area: 
0
Rooms: 
6
Bedrooms: 
3
Full Baths: 
2
Half Baths: 
0
Valuation:
Appraised Land: 
$74,600.00
Appraised Land PA490: 
$0.00
Appraised Bldg: 
$123,900.00
Appraised Total: 
$198,500.00
Total Assessment: 
$138,950.00
Property Images:
Picture: 
Sketch: 
Sales History:
Book: Page: Sale Date: Price: Validity: Sale Type:
227  595  04/03/95      VACANT - LAND ONLY SALE 
Out-Buildings:
Code: Description: Units: Year Built: Size1: Size2: Area: Grade: Condition:
RS1  FRAME UTILITY SHED  1999  140  EXCELLENT 
The information delivered through this on-line database is provided in the spirit of open access to government information and is intended as an enhanced service and convenience for citizens of Windsor Locks, CT.
The providers of this database: Tyler CLT, Big Room Studios, and Windsor Locks, CT assume no liability for any error or omission in the information provided here.

Comments regarding this service should be directed to: tim@bigroomstudios.com

Fri. December 19, 2025 : 08:27 AM : 0.10s : 9mb Big Room Studios