Windsor Locks, CT : Assessor Database
Property Search:
Parcel ID:  Alternate ID:  Owner 1 Name:  Street Number:  Street Name: 
Property Detail:
Parcel ID:  Alternate ID/Map Block Lot:  Card:  Card:  Street Name:  Street Number:  Zoning:  LUC:  Acres: 
00425600
040-076-119-
1
1
STEVENS STREET
73
RESA
Single Family Residence
0.47
Owner Information:
Owner 1 Name: 
VANDERBILT IRENE F LU GRAY JOAN &
Owner 2 Name: 
VANDERBILT PETER J & DAVID K
Street 1: 
73 STEVENS STREET
Street 2: 
 
City: 
WINDSOR LOCKS
State: 
CT
Zip: 
06096
Volume: 
426
Page: 
791
Deed Date: 
0000-00-00
Dwelling Information:
Living Units: 
1
Style: 
CAPE COD
Exterior Wall: 
VINYL SIDING
Story Height: 
1.5
Attic: 
NONE
Basement: 
FULL
Rec Room: 
549
Finished Basement Area: 
0
Bsmt Gar Spaces: 
0
Heating System: 
OIL/HOT WATER
Central Air: 
No
Fireplaces: 
1
Year Built: 
1956
Living Area: 
1835
Unfinished Area: 
0
Rooms: 
6
Bedrooms: 
3
Full Baths: 
2
Half Baths: 
0
Valuation:
Appraised Land: 
$70,500.00
Appraised Land PA490: 
$0.00
Appraised Bldg: 
$152,100.00
Appraised Total: 
$222,600.00
Total Assessment: 
$155,820.00
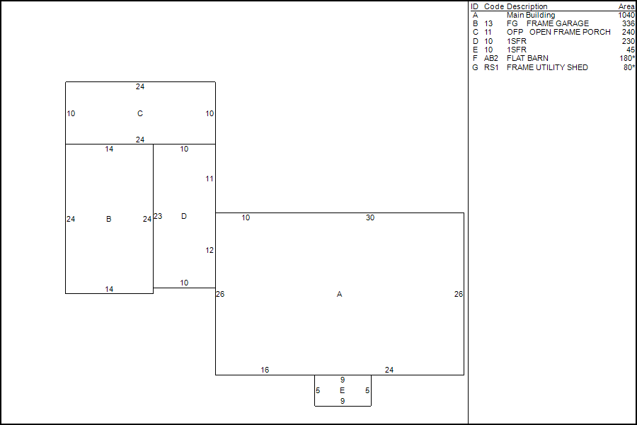
Property Images:
Picture: 
Sketch: 
Sales History:
Book: Page: Sale Date: Price: Validity: Sale Type:
61  285  06/11/56       
426  791  03/13/13    WILL  IMPROVED - L&B SALE 
397  1191  04/13/10      IMPROVED - L&B SALE 
Out-Buildings:
Code: Description: Units: Year Built: Size1: Size2: Area: Grade: Condition:
AB2  FLAT BARN  1999  180  AVERAGE 
RS1  FRAME UTILITY SHED  1999  80  AVERAGE 
The information delivered through this on-line database is provided in the spirit of open access to government information and is intended as an enhanced service and convenience for citizens of Windsor Locks, CT.
The providers of this database: Tyler CLT, Big Room Studios, and Windsor Locks, CT assume no liability for any error or omission in the information provided here.

Comments regarding this service should be directed to: tim@bigroomstudios.com

Wed. November 5, 2025 : 02:05 PM : 0.10s : 9mb Big Room Studios