Windsor Locks, CT : Assessor Database
Property Search:
Parcel ID:  Alternate ID:  Owner 1 Name:  Street Number:  Street Name: 
Property Detail:
Parcel ID:  Alternate ID/Map Block Lot:  Card:  Card:  Street Name:  Street Number:  Zoning:  LUC:  Acres: 
00478500
026-039-021-
1
1
WOODLAND STREET
474
RESA
Single Family Residence
0.31
Owner Information:
Owner 1 Name: 
ZAWADSKI JORDAN R
Owner 2 Name: 
 
Street 1: 
474 WOODLAND ST
Street 2: 
 
City: 
WINDSOR LOCKS
State: 
CT
Zip: 
06096
Volume: 
483
Page: 
357
Deed Date: 
0000-00-00
Dwelling Information:
Living Units: 
1
Style: 
RANCH
Exterior Wall: 
VINYL SIDING
Story Height: 
1.0
Attic: 
NONE
Basement: 
FULL
Rec Room: 
286
Finished Basement Area: 
0
Bsmt Gar Spaces: 
0
Heating System: 
OIL/HOT WATER
Central Air: 
No
Fireplaces: 
0
Year Built: 
1957
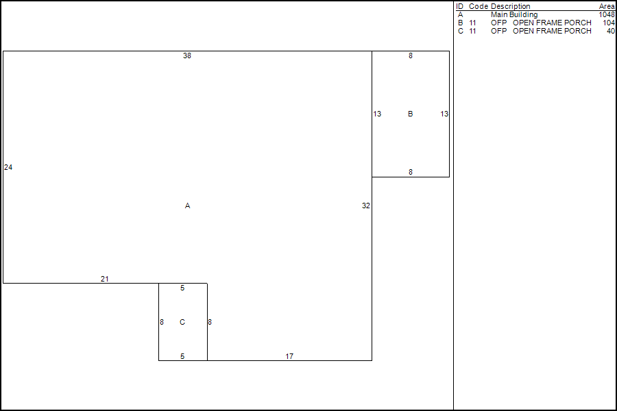
Living Area: 
1048
Unfinished Area: 
0
Rooms: 
5
Bedrooms: 
3
Full Baths: 
2
Half Baths: 
0
Valuation:
Appraised Land: 
$61,700.00
Appraised Land PA490: 
$0.00
Appraised Bldg: 
$83,400.00
Appraised Total: 
$145,100.00
Total Assessment: 
$101,570.00
Property Images:
Picture: 
Sketch: 
Sales History:
Book: Page: Sale Date: Price: Validity: Sale Type:
483  357  03/28/19  134,000  WILL  IMPROVED - L&B SALE 
473  911  02/08/18  WILL  IMPROVED - L&B SALE 
473  912  02/08/18    WILL  IMPROVED - L&B SALE 
149  318  06/29/84       
The information delivered through this on-line database is provided in the spirit of open access to government information and is intended as an enhanced service and convenience for citizens of Windsor Locks, CT.
The providers of this database: Tyler CLT, Big Room Studios, and Windsor Locks, CT assume no liability for any error or omission in the information provided here.

Comments regarding this service should be directed to: tim@bigroomstudios.com

Fri. December 19, 2025 : 09:56 AM : 0.10s : 10mb Big Room Studios