Windsor Locks, CT : Assessor Database
Property Search:
Parcel ID:  Alternate ID:  Owner 1 Name:  Street Number:  Street Name: 
Property Detail:
Parcel ID:  Alternate ID/Map Block Lot:  Card:  Card:  Street Name:  Street Number:  Zoning:  LUC:  Acres: 
20029000
048-091-041-
1
1
DIBBLE HOLLOW
111
MFSD
Residential Condominium
0.00
Owner Information:
Owner 1 Name: 
HIGGINS MARY L TR
Owner 2 Name: 
MARY L HIGGINS REV TR
Street 1: 
111 DIBBLE HOLLOW
Street 2: 
 
City: 
WINDSOR LOCKS
State: 
CT
Zip: 
06096
Volume: 
447
Page: 
1095
Deed Date: 
0000-00-00
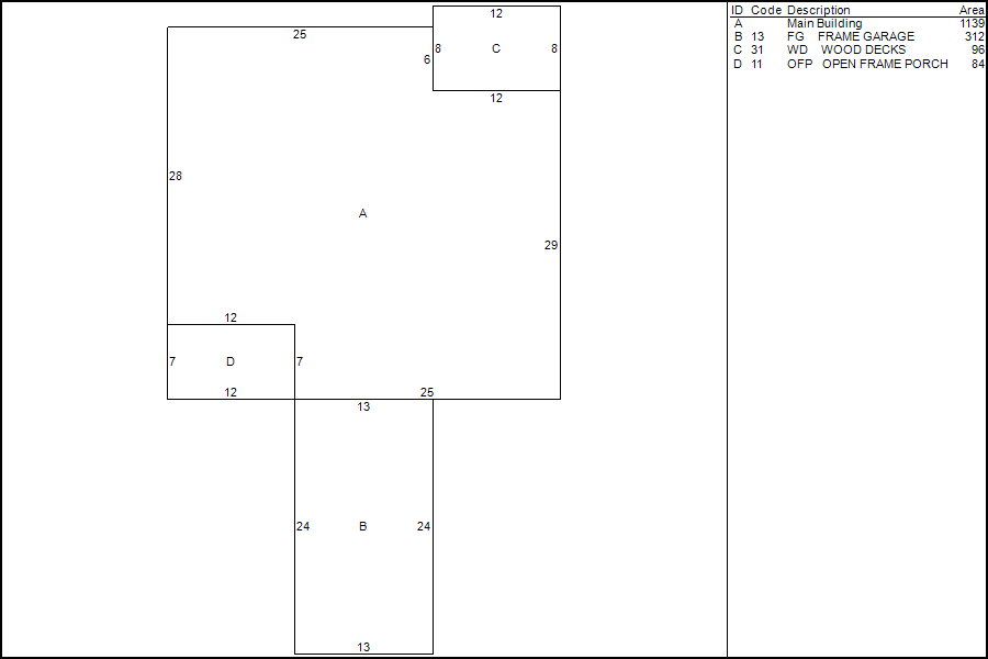
Dwelling Information:
Living Units: 
1
Style: 
CONDO
Exterior Wall: 
 
Story Height: 
1.0
Attic: 
NONE
Basement: 
FULL
Rec Room: 
0
Finished Basement Area: 
0
Bsmt Gar Spaces: 
0
Heating System: 
GAS/FORCED AIR-DUC
Central Air: 
Yes
Fireplaces: 
1
Year Built: 
2001
Living Area: 
1139
Unfinished Area: 
0
Rooms: 
4
Bedrooms: 
2
Full Baths: 
1
Half Baths: 
1
Valuation:
Appraised Land: 
$0.00
Appraised Land PA490: 
$0.00
Appraised Bldg: 
$156,000.00
Appraised Total: 
$156,000.00
Total Assessment: 
$109,200.00
Property Images:
Picture: 
Sketch: 
Sales History:
Book: Page: Sale Date: Price: Validity: Sale Type:
447  1095  06/15/15    WILL  IMPROVED - L&B SALE 
271  1010  03/28/01  146,490  VERIF BY DEED OR ASSURANCE  VACANT - LAND ONLY SALE 
260  943  09/27/99  350,000  VERIF BY DEED OR ASSURANCE   
The information delivered through this on-line database is provided in the spirit of open access to government information and is intended as an enhanced service and convenience for citizens of Windsor Locks, CT.
The providers of this database: Tyler CLT, Big Room Studios, and Windsor Locks, CT assume no liability for any error or omission in the information provided here.

Comments regarding this service should be directed to: tim@bigroomstudios.com

Tue. November 25, 2025 : 02:15 PM : 0.08s : 10mb Big Room Studios